Logistyka

Infoair - LOT uruchomił czartery z Radomia do Barcelony. Do rozkładu wróciła Preweza
Inforail - Linia kolejowa Kościerzyna – Gdynia zamknięta do odwołania. Pomorskie uruchomi ZKA
Infotrans - Gdynia: 28 czerwca startuje sezon letni 2025 w komunikacji miejskiej
FBSerwis dba porządek na ulicach w Gdańsku
Inforail - Trzy nowe lokomotywy Smartron w barwach Kolei Bułgarskich BDŻ
Ministerstwo Klimatu i Środowiska liderem inwestycji z KPO
Infobus - Cztery autobusy mild hybrid dla Powiatu Wodzisławskiego. ABP zgarnia zamówienie
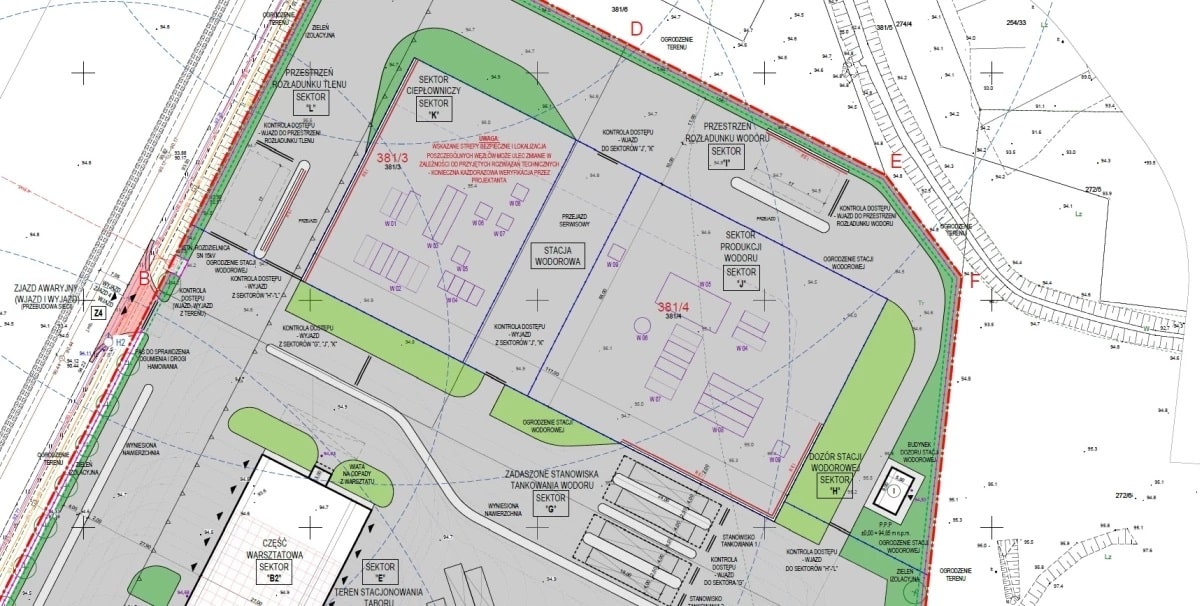
Infobus - Torpol wybuduje zajezdnię autobusową i stację H2 dla MZK Konin. Oferta za 115 mln zł
Infotram - Tunel tramwajowy w Krakowie zamknięty na miesiąc
Infotrans - Warszawa walczy z poważną awarią kasowników. ZTM wstrzymuje kontrole biletów
Furgalski, ZDG TOR: W sprawie Funduszu Kolejowego gramy do jednej bramki
Inforail - Deutsche Bahn prezentuje innowacje dla transportu publicznego na kongresie UITP
Inforail - PKP Intercity szykują dodatkowe wagony na długi weekend czerwcowy
Infobus - Wystawa UITP 2025: Solaris z Urbino 12 modular drive, czyli jamnik bez wieży
Kujawsko-pomorskie. Można budować kolejny odcinek S10
Łódź. Wakacje bez tramwajów MPK na Zachodniej i Kopernika
Aldesa Polska: Potrzeba dodatkowych zabezpieczeń przed wzrostem cen
Infobike - MEVO po maju 2025: Niemal 302 tysiące przejazdów i rekordy mimo pożaru
Infotram - Rampę tramwajową nad linią kolejową nr 131 w Chorzowie trzeba odbudować
CPK: Jak najwięcej kontraktów dla polskich firm
Branża TSL szykuje się na turbulencje – amerykańskie cła mogą wywrócić rynek
Mazowieckie. Rusza przebudowa DW731
Infobus - Na ile ofert ma szanse MPK Lublin w przetargu na trolejbusy? Analiza SWZ
Inforail - Związkowcy z PKP CARGO idą do prokuratury. Podejrzenie przestępstwa
Intercor najkorzystniejszy na budowę obwodnicy Kostrzyna nad Odrą
Balzola rozpoczęła przebudowę ul. Marszałkowskiej w Warszawie [GRAFIKI]
Infotram - Gdańsk z przetargiem na budowę nowej linii tramwajowej. Południe – Wrzeszcz
Lublin. Rusza przebudowa jednej z głównych dróg w mieście. To inwestycja za 65 milionów
Panattoni ma środki na dokończenie budowy nowego obiektu dla operatora logistycznego
Inforail - PKP Intercity tuż przed sezonem wakacyjnym. Co z taborem spalinowym?
SUUS otwiera magazyn w pobliżu Zielonej Góry
Infobus - Powtórka na 50 elektrobusów dla MZA Warszawa. Przetarg bez Yutonga? Analiza SWZ
Państwo destabilizuje polski rynek budowlany?
Infobus - Tak wygląda trolejbus Bozankaya SNG 12T dla DPP Praga. Z napędem od Medcom
Infobus - MPK Lublin kupuje koleje autobusy hybrydowe plug-in. Tym razem MEGA i z EFRR
Infobike - Nowe warunki techniczne budynków. Jest dobra informacja dla rowerzystów
Quo vadis, robocie? – sytuacja i trendy na rynku automatycznych systemów transportowych
Infobike - Policjant ponownie pojedzie rowerem miejskim w charytatywnym rajdzie
Infoship - Premiera filmu „Heweliusz” już jesienią. Mamy pierwszy zwiastun
Infobus - Września spośród czterech ofert wybiera autobus elektryczny od MMI. Urby Electric
Infobus - ZG PKS Rzeszów wybiera ofertę Veramo w przetargu na siedem autobusów elektrycznych
Infobike - Nietrzeźwi na e-hulajnogach: niepokojące dane z analiz powypadkowych
Infobus - Powiat Grudziądzki wybiera autobusy pozamiejskie od Solarisa. Dla PKS-u
Inforail - Klimczak: Chorwacja to tylko dodatek do rozkładu jazdy PKP Intercity
Infotrans - Rzecznik Praw Pasażerów kontra UOKiK ws. zmian zasad odszkodowań za opóźnione loty
Ministerstwo Przemysłu rozpoczyna porządki na rynku stali
Infoair - LOT stawia na Airbusa: historyczny zakup 40 nowych A220
Inforail - PKP Intercity z umową na dostawę energii. W tym zielonej
Budimex wykonał 80 proc. prac na S19 Haćki – Bielsk Podlaski
Infotram - Rozjazd nakładkowy w centrum Warszawy